Satılır, qaraj, 120 m², Bakı, Suraxanı r, Massiv V q.
055 222 65 63 Seçilmişlər

Satılır, qaraj, 120 m², Bakı, Suraxanı r, Massiv V q.

7000 AZN

Ruslan Mülkiyyətçi

Elanın nömrəsi

#6798295

Baxış sayı

717 nəfər

Yeniləndi

17 Noyabr 2025 0
Ünvan

Yeni Günəşli, Suraxanı rayonu massin V

Xəritəni göstər
Əmlakın növü

Qaraj

Çıxarış

Var

Sahə

120 m²

Təmir

Təmirsiz

Qısa məlumat

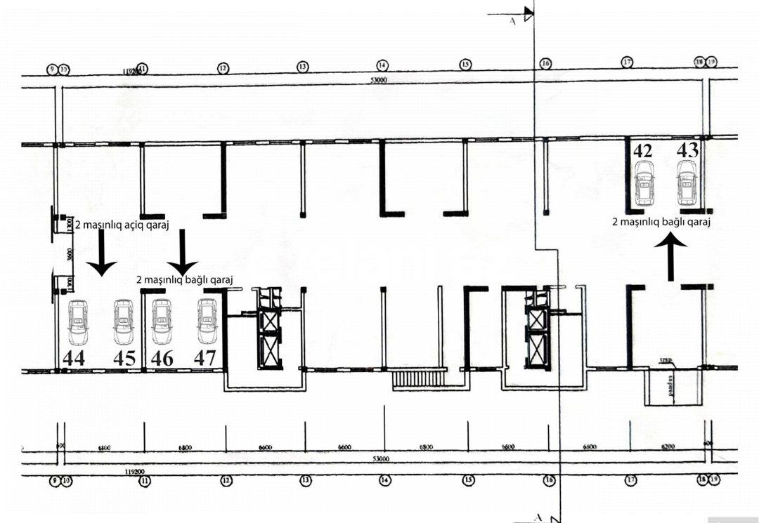
Suraxanı rayonu Yeni Günəşli qəsəbəsi, "V" yaşayış massivində yerləşən, 4 bloklu yeni tikili "Badu Küba" MTK tərəfindən inşa olunmuş, 15 mərtəbənin binanın altında ümumi sahəsi 120 kv.m. 6 qaraj (2 qaraj bağlı, hər bağlı qaraj 2 yerlidir, 40 kv.m., 2 qaraj açıq yan-yanadı, hərəsi 20 kv.m.). Qarajlar cərgəsində 3-4 blokun qarajlarıdır. Qarajın bayır divarları ikigat daşla hörülüb. Qaraj mayak üsulu ilə suvanıb. Bir bağlı qarajın qiyməti 15000 AZN (2 maşınlıq yer), bir açiq qarajin qiyməti 7000 AZN (1 maşın üçün). Hamsını götürən olsa, endirim olacaq. Сураханский район, поселок Ени Гюнешли, массив «V», 4-х блочная новостройка, построенная МТК «Баду Кюба», 15 этажная новостройка, общая площадь под домом 120 кв.м. 6 гаражей (2 гаража-закрытые, каждый закрытый гараж на две машины, 40 кв.м., 2 гаража-открытые, рядом друг с другом, каждый по 20 кв.м.). Гаражи размещены под 3-4 блоками. Наружные стены гаража из двойного кубика. Внутренняя отделка гаража под маяк. Цена одного закрытого гаража 15000 АЗН (место на 2 машины), цена одного открытого гаража 7000 АЗН (место на 1 машину). При покупке всех гаражей будет сделана скидка. 0557216772 0512509962 Ruslan

Bütün məlumatı göstər
Paylaş

7000 AZN

Ruslan Mülkiyyətçi

Elanın nömrəsi

6798295

Baxış sayı

717 nəfər

Yeniləndi

17 Noyabr 2025